listing

Нерухомість

Вся Нерухомість

Продано Опис

Квартира. Місто Умань

Умань

Район Центр

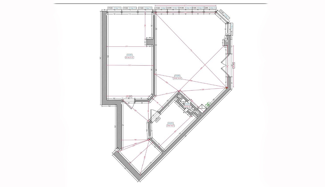
sqf 64 кв.м
1 Кімната
7 Поверх

  Продається світла простора 1-кімнатна квартира на 7 поверсі дев’ятиповерхового будинку в центрі міста, який тільки здали в експлуатацію. Загальна площа 64 кв.м, площа кухні  25 кв.м
  Індивідуальне опалення, є газовий двоконтурний котел, великі панорамні вікна з видом на місто. Вхідні металеві двері, вікна металопластикові з двокамерними склопакетами, підлога - цементна стяжка. Широкі просторі коридори.
  Підведено всі комунікації та встановлено лічильники (вода, газ, електроенергія).
  Ліфт працює навіть тоді, коли немає електроенергії (з акумулятором).
  Зроблений індивідуальний проект на перепланування. Стан від забудовника.

Карта

Район Центр

Floor Plan

Калькулятор

image

Запрошуємо до співпраці

20300  Україна, Черкаська обл.
м. Умань, вул. Гайдамацька, 20
+380(97) 943 01 54
+380(93) 933 39 28
+380(50) 134 14 65
umandim@ukr.net
Режим роботи:  Пн-Пт    09-18
                           Сб, Нд - вихідні

Заповніть це поле

Щоб отримати ексклюзивні новини та оновлення ринку, підпишіться на нашу розсилку

Слідкуйте за нами в соціальних мережах Facebook Instagram YouTube Twitter